Die Baugeschichte der Cyriakkapelle

2 Spalten

Für die Anfänge der Cyriakkapelle gibt es kaum Dokumentarisches - es war eine Zeit, in der man improvisieren und unkonventionelle Wege gehen musste.

Der Durchschlag eines Fragebogens, den ein Prediger-Pfarrer 1954 ausfüllen musste, berichtet immerhin, dass (wohl im Jahr 1949) Kirchenälteste zum Evangelischen Hilfswerk nach Stuttgart gereist sind, um Unterstützung für die Ansiedlung der Gemeinde in einem Wohngebiet, das der Kirche (nicht nur örtlich) sehr fern lag, zu erbitten. Bei dieser Gelegenheit soll es auch persönlichen Kontakt mit Prof. Bartning in der Bauabteilung in Neckarsteinach gegeben haben, was immerhin zur Folge hatte, daß Bartning gewisse Veränderungen am Bauplan des Gebäudes - Umbau von Sakristei, Teeküche und Altarnische zu einer Wohnung - genehmigte und für die Oberbauleitung des Projektes verantwortlich zeichnete.

Über welche Wege das Vorhaben praktisch und finanziell realisiert wurde, ist unklar - Tatsache ist, dass die vorgeschriebenen kirchenbehördlichen Genehmigungsverfahren nicht abliefen: ein Briefwechsel zweier Kirchenbeamter in Berlin und Magdeburg stellt fest, dass "ein Wunder unserer Zeit" geschehen ist: "Es fehlen die schriftlichen Unterlagen und die Kapelle steht" (28.9.1950).

Der erste Spatenstich fand Anfang Juli 1950 statt. Unter Beteiligung zahlreicher Gemeindeglieder, darunter viele Frauen, wurden Fundament und Keller hergerichtet, wobei Trümmersteine der zerstörten Erfurter Barfüßerkirche Verwendung fanden. Es lebt auch noch die Erinnerung an die Wachdienste auf dem Bauplatz, denn die kostbaren Materialien brauchten Schutz.

Schließlich wurde die Kapelle am 3. Advent 1950 (Sa., 16.12.?) eingeweiht. Den Namen Cyriak erhielt sie von der Cyriaksburg nahebei; auch die Siedlung, in der sie steht, trägt schon diesen Namen.

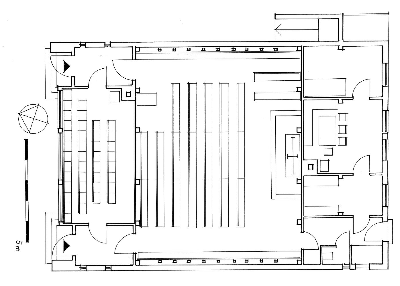
Im Jahre 1964 wurde die Schwesternwohnung im hinteren Teil der Kapelle erweitert. Die beiden Räume und die Küche waren bis dahin kaum 1,80m breit gewesen, jetzt wurde ihre Breite verdoppelt. Dadurch bekam die Kapelle auch auf der Rückseite den Knick in der Dachschräge, der - einseitig - für die Bartningschen Diasporakapellen so typisch ist. Eine weitere Besonderheit!

Während sich manche der Geschwisterkapellen im Lauf der Jahrzehnte stark verändert hat, die meisten ihr Teil vom sich entwickelnden Wohlstand (beispielsweise in Form von isolierenden Fenstern) abbekommen haben, während andere durch neue, größere, "schönere" Kirchen ersetzt wurden, befindet sich die Cyriakkapelle in großen Teilen ihrer Substanz immer noch im Originalzustand. Der Fußboden im Innenraum ist zwar nicht mehr mit den "Holzsteinfliesen", einem Nachkriegsmaterial aus Ziegelpulver und Spänen, dessen Einführung als Baumaterial aber schon auf das Bauhaus zurückgeht, gepflastert, aber auch von diesem originalen Fußbodenbelag, der dem Zahn der Zeit nicht standgehalten hat, ist in einer Ecke noch eine kleine Fläche bewahrt. Die Holzschindeldeckung der Anfangszeit existiert nicht mehr (nur noch an einem unzugänglichen Ort), sie musste bereits in den 1970er Jahren ersetzt werden. Das Bauwerk steht seit Anfang 2001 unter Denkmalschutz. Es hat in den 2010er Jahren denkmalgerechte Sanierungen erfahren und befindet sich in einem guten Zustand, der gleichwohl noch den "Charme" der Erbauungszeit ausstrahlt.

Nach oben